2652 Grand Ave, Astoria, OR 97103
Toggle Navigation
Images
Floor Plans
Map
2652 Grand Ave
Astoria, OR 97103
Scroll to Content
Images
Slideshow
Photo Grid
Hide
Previous
Next
Show more
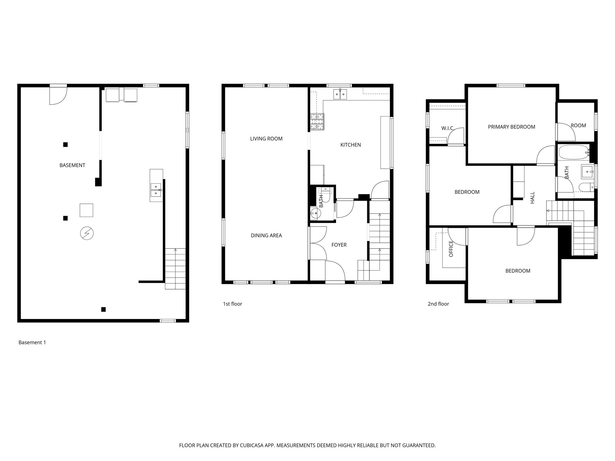
Floor Plans
Slideshow
Photo Grid
Hide
Previous
Next